泰兴生活网

 找回密码
 立即注册

微信登录

微信扫一扫,快速登录

查看: 1268|回复: 0
收起左侧

《尚层国际设计泰兴店》混搭风格!!!

[复制链接]

该用户从未签到

发表于 2016-3-23 09:45:25 | 显示全部楼层 |阅读模式 中国江苏泰州
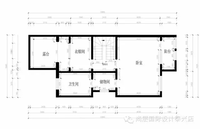
640.webp.jpg
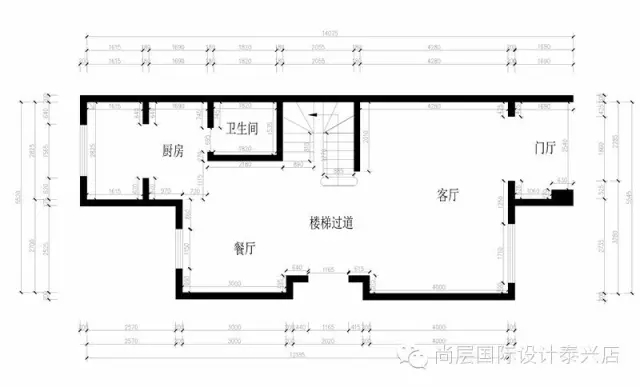
640.webp (1).jpg

尚层国际设计泰兴店
微信号:shangcengtx
要想了解跟多新中式设计案例请扫描下方二维码关注我们的微信平台或是搜索公共号shangcengtx回复《现代风格》!或是来店咨询地址泰兴市惠泽路10栋102(隆盛花园北大门)



半包费用包含

此户型是半包工程,此类包含:(人工+辅材)、敲墙、拆除、开槽、排线、PVC管材+配件、水管+配件、电线+配件、黄沙、水泥、红砖、E1级木 材、石膏板、五金件+安装、找平、木龙骨、防火涂料、油漆等,具体根据现场工程实际计算。

费用不包含

不包含的有:墙地砖、地板、洁具、卫浴、家具、家电、灯具等,具体根据现场工程实际计算。

《尚层国际设计泰兴店》2016年开年大吉!

现征集16年样板

样板房客户可以享受到半包8.5折优惠!

水电结束再收取一定比例带工程款!

地址:泰兴市惠泽路10棟102(隆盛花园北大门旁)

电话:18961035066
640.webp (2).jpg
640.webp (3).jpg
640.webp (6).jpg
640.webp (5).jpg

640.webp (8).jpg
640.webp (9).jpg
640.webp (10).jpg
640.webp (4).jpg
640.webp (11).jpg
640.webp (13).jpg
640.webp (14).jpg
设计师点评

混搭,顾名思义就是几种不同风格完美的结合在一起。将自己喜欢的元素融入装修之中,也是一种实现个性装修风格的手段。  混搭风格就是将自己的兴趣爱好融入在居家装修之中,从而打造有个性主义的浪漫之家,不仅体现自己的审美观,更彰显自己的生活态度。混搭风格,可以说是一种随意的装修方式,但不是随便的摆放,更重要的是搭配,而不是将自己喜欢的元素单纯的拼凑在一个空间之内。因此混搭风格主要的特点就是主次分明、和谐搭配、自然舒适。

客厅,主要以新中式风格为主。亚麻质感的沙发,配上花梨木的独板茶几,既严谨又不失舒适的感觉。背景墙大面积运用护墙板,装饰效果既整体又突显其立体感,此为整个客厅装修的一大亮点。餐厅在家具选择上以现代圈椅为主脉,古朴而不失中式韵味。其设计效果较浓的鸟笼吊顶,大大衬托了中式里难有的悠闲味道。这种风格最能体现我们民族的家居风范与传统文化的审美意蕴,追求的是一种修身养性的生活境界,格调高雅,沉重而内敛,凸显大气,高贵,文雅之氛围。

主卧,主要以美式为主,无论是壁纸的选择还是家具的造型中,无不透露其悠然惬意的目的。也造就了其自在、随意的不羁生活方式,没有太多造作的修饰与约束,不经意中也成就了另外一种休闲式的浪漫。这些元素也正好迎合了时下的文化资产者对生活方式的需求,即:有文化感、有贵气感,还不能缺乏自在感与情调感。

儿童房,主要以现代风格为主,7岁的男孩房间是全屋的最高点,可爱而董事的孩子,眼里对蓝色和黄色颇为喜爱,所以后期设计师以此为契合点,大胆将两大对比色加以运用。在颜色的使用上成为了整个卧室的一大亮点,致使空间效果几近完美。如此美丽舒适的房间,住起来应该别有一番趣味吧。

《尚层国际设计泰兴店》2016年开年大吉!
   
现征集16年样板

样板房客户可以享受到半包8.5折优惠!

水电结束后再收取一定比例的工程款

地址:泰兴市惠泽路10棟102(隆盛花园北大门旁)

电话:18961035066
QQ图片20160115154556.png
尚层国际设计泰兴店公众平台
以家为界,探讨高端居住生态,还原生活本质
640.webp (12).jpg



640.webp (7).jpg
您需要登录后才可以回帖 登录 | 立即注册 微信登录

本版积分规则

泰兴生活网微信公众号
泰兴生活资讯服务平台,招聘求职、房屋租售、家政服务、二手闲置等信息发布!

QQ|挪车码|手机版|经营性ICP:苏B2-20120344|泰兴生活网 ( 苏ICP备19030850号-1 )|苏公安网络备案:32128302001100 @泰兴生活网版权所有

GMT+8, 2026-4-28 09:09 , Processed in 0.243325 second(s), 31 queries .

Powered by Discuz! X3.4

Copyright © 2001-2021, Tencent Cloud.

快速回复 返回顶部 返回列表